找回密码
 立即注册

QQ登录

只需一步,快速开始

微信扫码登录

使用验证码登录

[设计装修] 💠84平现代家装,16万摆脱生活的疲惫,享受一辈子的清净!

[复制链接]

马上注册,结交更多好友,享用更多功能,让你轻松玩转社区。

您需要 登录 才可以下载或查看,没有账号?立即注册

x


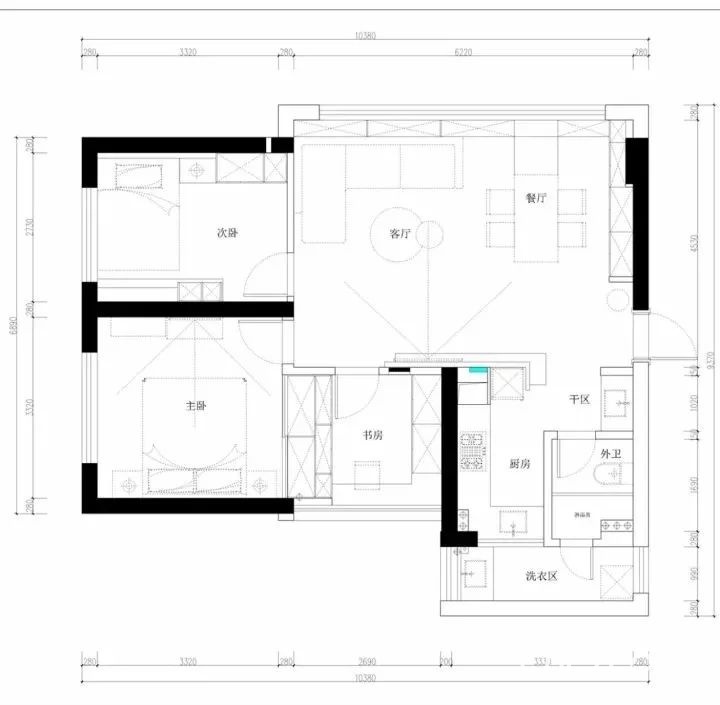
这套84平米的小房子,客餐厅是横厅格局,在较小的面积基础下,在布局时候把沙发靠窗摆放,为整个客餐厅空间腾出了宽松舒适的氛围,整个空间都显得格外的宽敞大方。
1.jpg
1.jpg
1.jpg
进门位置并没有独立的玄关,一开门就看着电视墙的侧边还装了个抽屉,上方摆一张菠萝装饰画,在文化墙的搭配下,显得格外的优雅文艺。
1.jpg
1.jpg
电视墙以白色文化砖打造,结合上方的鹿头与原木电视柜,整体简洁又文艺大方。
1.jpg
在电视墙右侧的木饰隐形门造型,显得格外的自然大方。
1.jpg
沙发墙靠在窗边这一侧,灰色的布艺沙发、2张黄绿小圆形茶几,结合窗帘的衬托,显得自然又舒适。
1.jpg
1.jpg
客餐厅是横厅格局,沙发旁边就是摆着餐桌椅,黑白简约的搭配显得格外的自然时尚。
1.jpg
简约时尚的餐桌椅,与整体空间搭配起来很是和谐的视觉感。
1.jpg
餐厅背景墙被装成书架收纳,摆上书籍后充满了文艺的美感。
1.jpg
餐台上的物品多而杂,在精致文艺的搭配下,却并不显得乱。
1.jpg
1.jpg
卧室的床头背景墙以孔雀绿刷新,结合原木床、植物挂画、简约舒适的床单,搭配出了清新与活力的氛围,让整个卧室都显得自然又充满生机。
1.jpg
床头柜的小绿植,与床头灯搭配起来相当的和谐精致,同时咖色与格纹的窗帘,也增添了空间的简约感。
1.jpg
1.jpg
次卧把床靠窗摆放,在卧室休息时就能远眺深山与蓝天,床头背景墙以木纹图案地板打造,床头的墙突出部分装成一道摆台,摆上装饰画也是清新又惬意。
1.jpg
独特的木纹,让整个空间都充满了文艺的气息。
1.jpg
1.jpg
1.jpg
书房墙面装了一块软木板,贴上照片记录着去往各地的点点滴滴,充满爱意。
1.jpg
1.jpg
洗手盆采用较为高档的台上盆,搭配一个黑框园镜,在波浪纹的墙砖搭配,显得文艺又简约大气。
1.jpg
洗手盆右侧装了个搁板,挂毛巾与摆放卫浴用品,还摆了一盆绿植,搭配小块黑砖,满满的文艺与清新气息。
1.jpg

来源:微信
分享至 : QQ空间
收藏
该用户还没有设置签名内容!

0 个回复

您需要登录后才可以回帖 登录 | 立即注册