找回密码
 立即注册

QQ登录

只需一步,快速开始

微信扫码登录

使用验证码登录

[设计装修] 💠95m2温润北欧2居,看似简约却设计感十足,绝对让你一眼爱上!

[复制链接]

马上注册,结交更多好友,享用更多功能,让你轻松玩转社区。

您需要 登录 才可以下载或查看,没有账号?立即注册

x

1.jpg
这是一套妹子看了都会喜欢的北欧风的家居设计                                             
1.jpg
硬装以温润的木色为主, 整体色彩基调采用的是迷雾灰,软装配饰点缀低饱和度的樱花粉                                                            
1.jpg
配色在表达上偏向温柔,低饱和度的樱花粉冷却了最热烈的情绪                                                            
1.jpg
局部点缀有黄铜金质感的家具则让空间不乏精致,而阔叶植物则赋予了空间灵动与活力,传递出简单而又美好,治愈所有不好的坏情绪。                          
1.jpg
客餐厅交界处原木色的斗柜为生活带去便利,大火的粉色火烈鸟挂画衬托出小女人的浪漫                                                            
1.jpg
简单的餐桌椅没有复杂的造型,与家中简约的风格一致,简约中却不乏设计感,利用墙面造型增加收纳空间,很多小户型的家庭都能参考
1.jpg
餐厅区域简约却不单调,一切恰到好处,无论是一家人就餐还是来了亲朋好友,他都能满足                                                            
1.jpg
玻璃隔断后白净的厨房在视觉上扩大空间开阔感,只是需要业主勤快打扫卫生了                                                            
1.jpg
主卧室温馨甜蜜                                                            
1.jpg
主卧室里,原户型封闭的通道改成了业主一直向往的独立式衣帽间,增加了功能需求的同时,合理的解决了流线空间多余浪费的问题。                     
1.jpg
最大面积的使用落地窗结合白色百叶帘,充分利用阳台的采光通风              
1.jpg
家的空间不大却预留出很大一块区域作为阳台                                                  
1.jpg
将阳台发挥它最大的价值,改造成休闲区,摆放桌椅与成片的绿植,就好像在国外度假一样                                                            
1.jpg
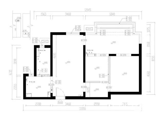
原始户型图                                                            
1.jpg

来源:微信
分享至 : QQ空间
收藏
该用户还没有设置签名内容!

0 个回复

您需要登录后才可以回帖 登录 | 立即注册