找回密码
 立即注册

QQ登录

只需一步,快速开始

微信扫码登录

使用验证码登录

[设计装修] 书柜墙替代电视背景,衣帽间兼健身房

[复制链接]

马上注册,结交更多好友,享用更多功能,让你轻松玩转社区。

您需要 登录 才可以下载或查看,没有账号?立即注册

x

1.jpg

▲ 建筑面积180平,使用面积168平,玄关蓝色黑板漆,方便留言,增加一块层板上面搁置装饰画,提升玄关艺术感

1.jpg
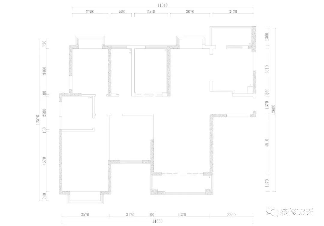
▲ 原始平面图

1.jpg
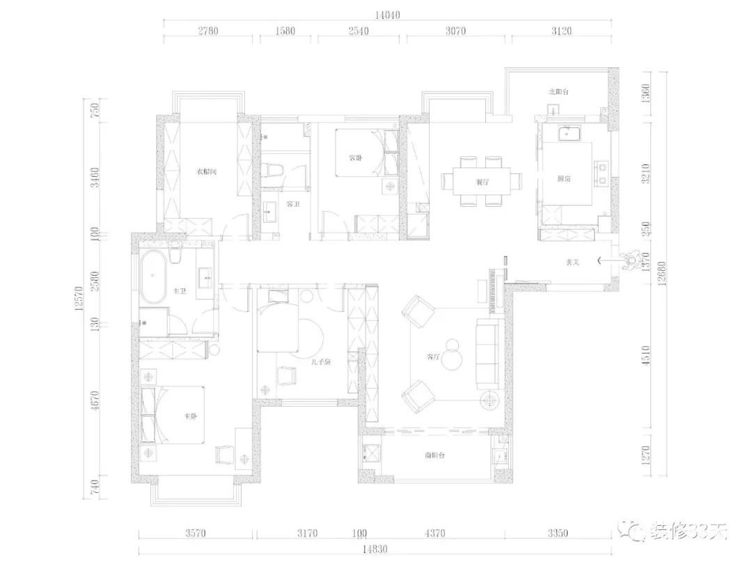
▲ 平面布置图

1.jpg
▲ 客厅深蓝色背景墙,木色边框与木质地板呼应,给人沉稳温馨的感觉

1.jpg
▲ 黑灰搭配家具与软装,光线透过柔软窗纱,营造温馨而静谧的休闲环境

1.jpg
▲ 客厅不设置电视墙以书柜取代,考虑到打理问题,开放的地方用一公分黑色不锈钢不同比例的分割来增加装饰

1.jpg
▲ 客餐厅互通,扩大空间感的同时增加家人间的交流,营造和谐的家庭氛围

1.jpg
▲ 餐厅与厨房相邻,客厅木色天花延伸至餐厨区,与木色餐桌呼应,增添自然质感

1.jpg
▲ 餐厅墙面延伸至地面铺贴花砖结合木地板,设置实心不锈钢条在地板和地砖之间收口,形成比较好的装饰面

1.jpg
▲ 厨房灰白色系搭配彩砖背景,定制橱柜嵌入大型厨电,整齐又干净

1.jpg
▲ 过道相对开阔,在临近客厅处放置边柜,上方悬挂圆镜与装饰画增加生活气息

1.jpg
▲ 客卫干湿分区,提高使用效率

1.jpg
▲ 走廊端景,大幅抽象画与朱砂红单椅,呈现艺术质感

1.jpg
▲ 独立衣帽间将部分柜门做成镜面材质,放大视觉的同时,增加了衣帽间的功能,兼作健身房使用

1.jpg
▲ 主卧木色地面搭配浅色暗花壁纸,深灰色布艺大床,搭配现代悬挂式吊灯,营造舒适就寝氛围

1.jpg
▲ 在主卧增设阅读区,简约的布置不失情调

1.jpg
▲ 主卫浅色基调加入木隔板与绿植映衬生机,浴缸,墙排马桶功能齐全

来源:微信
分享至 : QQ空间
收藏
该用户还没有设置签名内容!

0 个回复

您需要登录后才可以回帖 登录 | 立即注册