找回密码
 立即注册

QQ登录

只需一步,快速开始

微信扫码登录

使用验证码登录

[设计装修] 【室内设计】108㎡自然、舒适简约风,清雅文艺又不失精致优雅!

[复制链接]

马上注册,结交更多好友,享用更多功能,让你轻松玩转社区。

您需要 登录 才可以下载或查看,没有账号?立即注册

x

家装室内设计 ,每日搜集分享国内外最前沿的家装设计、施工、建材等内容,成为您家装的好帮手!
这是一套来源自清羽设计的案例,色彩搭配非常的清雅,简约自然,在选材上也追求极致舒适,细节之处别具品质感,如沙发旁边金色的种花器皿,客厅的吊灯,还有吊顶石膏花盘,整体给人的感受,又仙又唯美,快进入房子里面看看吧!

图赏

1.jpg
玄关鞋柜中间掏空设计,有一种隔而不断的效果。从这个角度看客厅,一片自然风光尽收眼底。
1.jpg 通铺木地板,相比冰冷的瓷砖,更能给人带来舒适感。沙发区域铺上地毯,光着脚丫踩在上面,柔软舒适,可以说是最放松的状态了。
1.jpg
简约的木质小茶几,不点地方,还可以自由移动,实用方便。深灰色的沙发,高雅有气质,而且更易打理。搭配几何图案的抱枕,更加了空间的时尚感。
1.jpg
通过不同灰度的家具,更加有层次。角落里的绿植,是空间的点缀,让室内充满生机与活力!
1.jpg
圆形的吊挂式置物架,与其说是一件家具,不如说是一件艺术品,在大叶榕与黑色背景的映衬下,特别有意境!
1.jpg
高脚支架,金属种花器皿,本身也是一种装饰,用它来种绿植,颜值不知提升了多少个档次!
1.jpg
阳台一侧是收纳柜,另一侧打造成了一个小书房,晒着太阳,看看书,多么惬意!
1.jpg
餐厅清新简洁,外面是个小阳台,玻璃推拉门,保证了足够的光线进入室内。
1.jpg
纯洁的白色,清新的绿色,自然的木色,就餐的环境也是很美很仙的。
1.jpg
1.jpg
1.jpg
餐厅外的阳台,文艺砖、绿植、抱枕,特别小清新。
1.jpg
主卧空间与公共区域风格、色调一致,干净、纯洁,优雅、宁静。
1.jpg
1.jpg
1.jpg
1.jpg
儿童房有个活动的地台设计,底下还设计了抽屉,也非常的实用。
1.jpg
1.jpg
榻榻米设计,是书房,也是客房,一房多用,值得小户型借鉴。
1.jpg
厨房薄荷绿色的橱柜,特别的清新。在功能的规划上也很合理,左侧靠窗位置留了一个放置杂物的地方,想得很周到。
1.jpg
主卫简约时尚
1.jpg
客卫洗手台设在外面,很好的进行了干湿分区,也更方便家人使用。
1.jpg
▲原始户型图
1.jpg
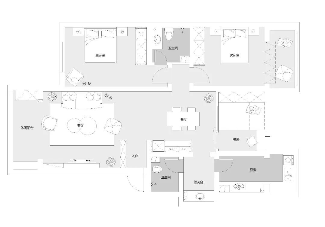
▲平面户型图



来源:微信以上内容如有侵权请联系删除



分享至 : QQ空间
收藏
该用户还没有设置签名内容!

0 个回复

您需要登录后才可以回帖 登录 | 立即注册