找回密码
 立即注册

QQ登录

只需一步,快速开始

微信扫码登录

使用验证码登录

[设计装修] 客餐书房三合一,70㎡小三房的家全是省地实用的空间利用智慧!

[复制链接]

马上注册,结交更多好友,享用更多功能,让你轻松玩转社区。

您需要 登录 才可以下载或查看,没有账号?立即注册

x
1.jpg
客厅+餐厅+书房一体式的多功能休闲区域,
时下最明智最流行的空间开阔法,
结合高级又显大的配色软装。
一个布局恰到好处的家,是住得舒坦的关键!
1.jpg
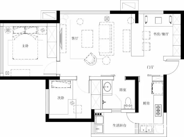
房屋信息:
坐标:四川 成都
户型:2室
使用面积:70㎡
装修花费:18万元
户型图
1.jpg
房子的总面积不大,户型紧凑,
首先要根据屋主的生活需求规划好空间布局。
1.jpg
改拆部分墙体,
让客厅、餐厅、书房休闲空间
一体化改造成为一个横厅,
既满足了居家需求,
还精心打造了一个集读书、休闲、
喝茶等使用功能的区域。
重新规划次卧与卫生间两个空间,
减少过道,把多余的储物面积让给次卧,
让原本狭小的次卧更加宽敞,
浴室也宽松实用。
客厅
1.jpg
摒弃传统北欧风格的大白墙,
采用暖灰色调的乳胶漆,
治愈系蓝色作为点缀,
整体空间温馨而雅致。
1.jpg
地面采用拼木纹样的木地板,
自然且足感舒适,
大块幅的地毯减少地面的杂乱,
凸显家具烘托整体氛围,
与木地板相得益彰。
1.jpg
书房和客厅连通,
将原本狭小独立的两个空间变成一个大横厅,
70平米的小居室也变得更开敞明亮。
1.jpg
沙发区搭配小巧灵活的藤编茶几,
把更多空间留出作为活动区域,
方便带小孩,也避免可能的磕磕碰碰。

餐厅
1.jpg
休闲坐榻与餐桌,
整体营造成一个满足生活功能需求的艺术装置,
成为一进门的视觉中心。
可休闲看书,喝茶聊天,亦静亦动使用方便。
1.jpg
餐桌现场制作,
以便能做到完美收边收口,
桌面采用水曲柳面板做有色漆。
1.jpg
   餐台巧妙的结合剪力墙,
设计成一个多功能的灰空间,
将聚厅和休闲区完美结合、过渡,
同时满足并拓展了不同时段的使用需求。

卧室
1.jpg
床头的吊灯挂低一点,
这样看书的时候就不会晃眼睛。
1.jpg
卧室强调简单舒适,
大块的暖色墙面让人倍感温馨,
墙顶分色,白色的吊顶让空间显得更高,
避免压抑感。
1.jpg
摆件、花艺点缀空间,
避免沉闷,强调生活情调。

儿童房
1.jpg
次卧设计榻榻米床带书桌,
书桌换了一个方向,
从心理学上避免后背对着卧室门,
有更多安全感,有助于小孩专注度的养成。
书桌大小1.2米*0.5米*0.75米,
对于使用来说,尺寸上也很合适。

卫生间
1.jpg
浴室柜和淋浴房中间立1米高的矮隔墙上面,
再封淋浴房的玻璃,
而玻璃封在了矮墙的内侧,
这样对于浴室柜这个空间还多了一个台面出来,
放点香薰,女士的化妆用品也很实用。

浴室柜是整体定制的,尺寸上也刚好合适,
这样卫生间整洁没有缝隙,没有卫生死角。

厨房
1.jpg
厨房不大,但五脏俱全,
强调便利和收纳。

彩蛋
1.jpg
入户挤出一个整体鞋柜,
鞋柜柜门与厨房门共用。
这样的方式节省空间,方便使用。
1.jpg
配电箱隐藏设计在柜子里面,
减少改配电箱的麻烦。
订做的谷仓门让鞋柜的功能和形式完美结合,
时尚而个性。

来源:微信
分享至 : QQ空间
收藏
该用户还没有设置签名内容!

0 个回复

您需要登录后才可以回帖 登录 | 立即注册